
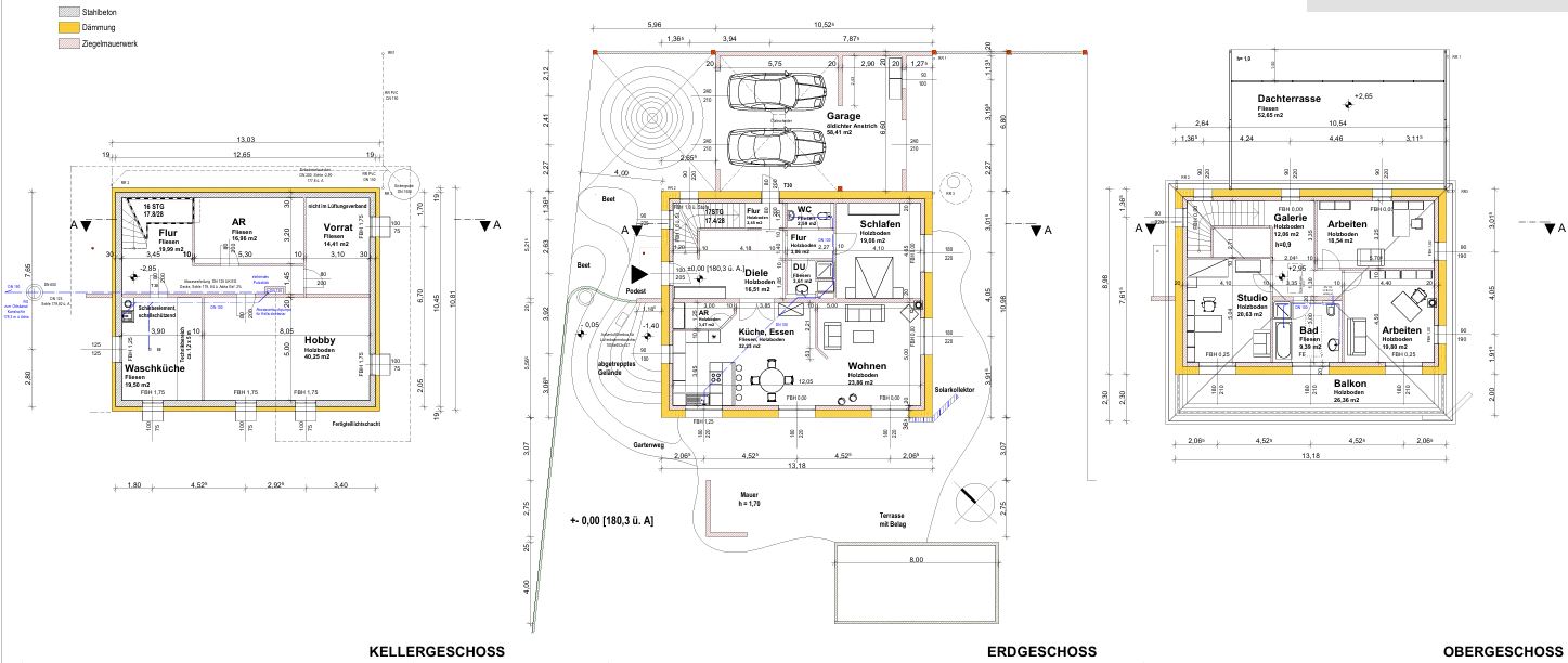
Passivhaus in ökologischer Bauweise. Mit Erdwärmepumpe, Photovoltaik und Auszeichnung: Bestes ökologisches Konzept, Wienerberger Ziegel.


Passivhaus in ökologischer Bauweise. Mit Erdwärmepumpe, Photovoltaik und Auszeichnung: Bestes ökologisches Konzept, Wienerberger Ziegel.
